Použitie klapky:
- je určená pre samočinnú reguláciu prítoku,
- a tiež pre reguláciu výtoku kvapaliny z nádoby podľa výšky hladiny,
- prevádzkovým médiom môže byť voda a iné neagresívne kvapaliny.
|
|
Pripojenie klapky:
- je možné prispôsobenie medzi príruby PN 6, 10, 16 pomocou skrutiek bez tesnenia.
Materiál klapky:
- teleso klapky je zo sivej liatiny,
- tanier z mosadze,
- čap je z nerezovej ocele,
- tesnenie čapu – „O“ krúžok z gumy,
- tyč z uhlíkovej ocele.
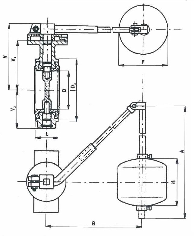
Technický popis klapky
- uzatváranie je pomocou páky otočením o 90° doprava,
- plavák uzatvára klapku pri stúpaní hladiny,
- zdvih je obmedzený dorazovou skrutkou.

Rozmery klapky
| DN | D | L | V | V1 | V2 | DЗ | F | H | A | B | Dp | kg |
|---|---|---|---|---|---|---|---|---|---|---|---|---|
| 50 | 50 | 43 | 159 | 113 | 59 | 102 | 380 | 300 | 1035 | 300 | 0.6 | 15.1 |
| 65 | 70 | 46 | 170 | 124 | 71 | 122 | 380 | 300 | 1035 | 300 | 0.6 | 15.6 |
| 80 | 80 | 46 | 186 | 140 | 82 | 140 | 380 | 300 | 1035 | 500 | 0.6 | 16.7 |
| 100 | 100 | 52 | 196 | 150 | 94 | 160 | 380 | 300 | 1035 | 500 | 0.6 | 17.6 |
| 125 | 125 | 56 | 209 | 163 | 114 | 188 | 380 | 385 | 1550 | 1000 | 0.6 | 22.9 |
| 150 | 150 | 56 | 221 | 175 | 127 | 214 | 380 | 385 | 1550 | 1000 | 0.6 | 24.2 |

